Правительство Санкт-Петербурга
Жилищный комитет
Санкт-Петербургское государственное бюджетное учреждение
Горжилобмен
Основано в 1927 году

Уважаемые заявители!

С 6 апреля 2020 года приостановлен прием заявителей по всем направлениям деятельности учреждения.

Также приостановлена работа сервиса предварительной записи на прием «Запись онлайн». Оформленная ранее запись на прием автоматически отменяется.
Изменения в работе учреждения связаны с введением всеобщего режима самоизоляции и будут действовать до особого распоряжения.

Об изменениях в организации работы СПб ГБУ «Горжилобмен» и возобновлении работы сервиса будет сообщено дополнительно.

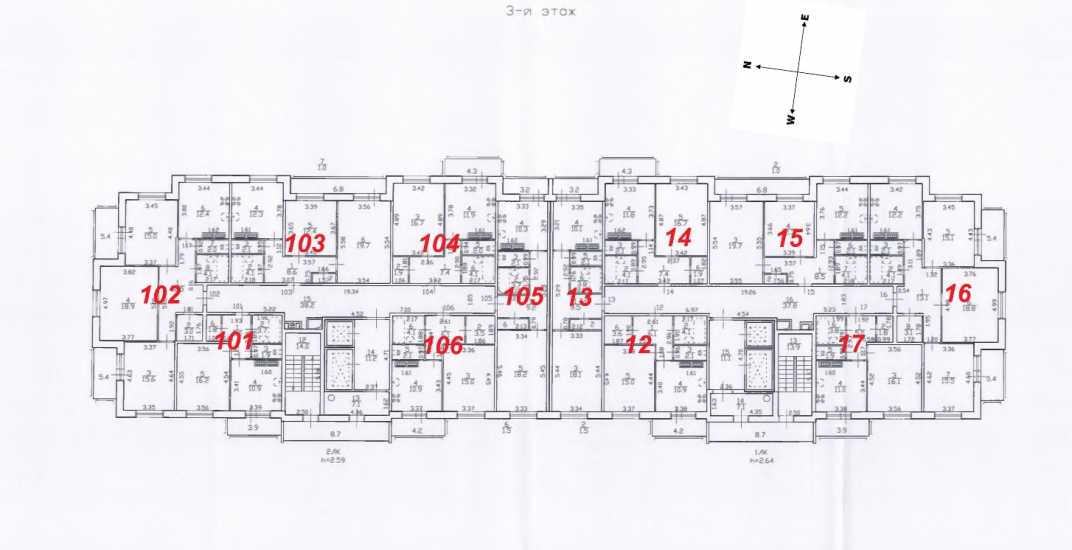
3 этаж

  • Общий план 3 этажа

    Кв. 12 - Однокомнатная квартира

    Статус
    Квартира заселена
    Балкон
    Лоджия
    Санузел
    Раздельный
    Общая пл
    41.8 м2
    Стоимость платы за наём, без КУ
    8 109.20 руб.
    Ср. стоимость КУ в межотопительный период
    1 989.47 руб.
    Ср. стоимость КУ в отопительный периоду
    3 478.42 руб.

    Кв. 13 - Однокомнатная квартира

    Статус
    Квартира заселена
    Балкон
    Лоджия
    Санузел
    Раздельный
    Общая пл
    45.1 м2
    Стоимость платы за наём, без КУ
    8 749.40 руб.
    Ср. стоимость КУ в межотопительный период
    1 989.47 руб.
    Ср. стоимость КУ в отопительный периоду
    3 478.42 руб.

    Кв. 14 - Однокомнатная квартира

    Статус
    Квартира заселена
    Балкон
    Балкон
    Санузел
    Раздельный
    Общая пл
    44 м2
    Стоимость платы за наём, без КУ
    8 536.00 руб.
    Ср. стоимость КУ в межотопительный период
    1 989.47 руб.
    Ср. стоимость КУ в отопительный периоду
    3 478.42 руб.

    Кв. 15 - Двухкомнатная квартира

    Статус
    Квартира заселена
    Балкон
    Лоджия
    Санузел
    Раздельный
    Общая пл
    59.9 м2
    Стоимость платы за наём, без КУ
    11 620.60 руб.
    Ср. стоимость КУ в межотопительный период
    2 971.45 руб.
    Ср. стоимость КУ в отопительный периоду
    5 091.01 руб.

    Кв. 16 - Трехкомнатная квартира

    Статус
    Квартира заселена
    Балкон
    2 лоджии
    Санузел
    Раздельный
    Общая пл
    84 м2
    Стоимость платы за наём, без КУ
    16 296.00 руб.
    Ср. стоимость КУ в межотопительный период
    3 903.93 руб.
    Ср. стоимость КУ в отопительный периоду
    6 829.28 руб.

    Кв. 17 - Однокомнатная квартира

    Статус
    Квартира заселена
    Балкон
    Лоджия
    Санузел
    Раздельный
    Общая пл
    39.6 м2
    Стоимость платы за наём, без КУ
    7 682.40 руб.
    Ср. стоимость КУ в межотопительный период
    1 989.47 руб.
    Ср. стоимость КУ в отопительный периоду
    3 478.42 руб.

    Кв. 101 - Однокомнатная квартира

    Статус
    Квартира заселена
    Балкон
    Лоджия
    Санузел
    Раздельный
    Общая пл
    39.5 м2
    Стоимость платы за наём, без КУ
    7 663.00 руб.
    Ср. стоимость КУ в межотопительный период
    1 989.47 руб.
    Ср. стоимость КУ в отопительный периоду
    3 478.42 руб.

    Кв. 102 - Трехкомнатная квартира

    Статус
    На данную квартиру подано заявление
    Балкон
    2 лоджии
    Санузел
    Раздельный
    Общая пл
    83.5 м2
    Стоимость платы за наём, без КУ
    16 199.00 руб.
    Ср. стоимость КУ в межотопительный период
    3 903.93 руб.
    Ср. стоимость КУ в отопительный периоду
    6 829.28 руб.

    Кв. 103 - Двухкомнатная квартира

    Статус
    Квартира заселена
    Балкон
    Лоджия
    Санузел
    Раздельный
    Общая пл
    60.2 м2
    Стоимость платы за наём, без КУ
    11 678.80 руб.
    Ср. стоимость КУ в межотопительный период
    2 971.45 руб.
    Ср. стоимость КУ в отопительный периоду
    5 091.01 руб.

    Кв. 104 - Однокомнатная квартира

    Статус
    Квартира заселена
    Балкон
    Балкон
    Санузел
    Раздельный
    Общая пл
    44 м2
    Стоимость платы за наём, без КУ
    8 536.00 руб.
    Ср. стоимость КУ в межотопительный период
    1 989.47 руб.
    Ср. стоимость КУ в отопительный периоду
    3 478.42 руб.

    Кв. 105 - Однокомнатная квартира

    Статус
    Квартира заселена
    Балкон
    Лоджия
    Санузел
    Раздельный
    Общая пл
    45 м2
    Стоимость платы за наём, без КУ
    8 730.00 руб.
    Ср. стоимость КУ в межотопительный период
    1 989.47 руб.
    Ср. стоимость КУ в отопительный периоду
    3 478.42 руб.

    Кв. 106 - Однокомнатная квартира

    Статус
    Квартира заселена
    Балкон
    Лоджия
    Санузел
    Раздельный
    Общая пл
    41.7 м2
    Стоимость платы за наём, без КУ
    8 089.80 руб.
    Ср. стоимость КУ в межотопительный период
    1 989.47 руб.
    Ср. стоимость КУ в отопительный периоду
    3 478.47 руб.

    Уважаемые заявители!

    С 6 апреля 2020 года приостановлен прием заявителей по всем направлениям деятельности учреждения.

    Также приостановлена работа сервиса предварительной записи на прием «Запись онлайн». Оформленная ранее запись на прием автоматически отменяется.
    Изменения в работе учреждения связаны с введением всеобщего режима самоизоляции и будут действовать до особого распоряжения.

    Об изменениях в организации работы СПб ГБУ «Горжилобмен» и возобновлении работы сервиса будет сообщено дополнительно.

    Всего:
    0 семинара
    Сумма: 0 руб.

    СПБ ГБУ Горжилобмен



    Выделите опечатку и нажмите Ctrl + Enter, чтобы отправить сообщение об ошибке.