Правительство Санкт-Петербурга
Жилищный комитет
Санкт-Петербургское государственное бюджетное учреждение
Горжилобмен
Основано в 1927 году

Уважаемые заявители!

С 6 апреля 2020 года приостановлен прием заявителей по всем направлениям деятельности учреждения.

Также приостановлена работа сервиса предварительной записи на прием «Запись онлайн». Оформленная ранее запись на прием автоматически отменяется.
Изменения в работе учреждения связаны с введением всеобщего режима самоизоляции и будут действовать до особого распоряжения.

Об изменениях в организации работы СПб ГБУ «Горжилобмен» и возобновлении работы сервиса будет сообщено дополнительно.

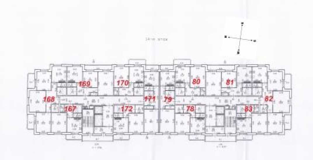
14 этаж

  • план 14 этажа  - копия

    Кв. 78 - Однокомнатная квартира

    Статус
    Квартира заселена
    Балкон
    Лоджия
    Санузел
    Раздельный
    Общая пл
    41.9 м2
    Стоимость платы за наём, без КУ
    8 128.60 руб.
    Ср. стоимость КУ в межотопительный период
    1 989.47 руб.
    Ср. стоимость КУ в отопительный периоду
    3 478.42 руб.

    Кв. 79 - Однокомнатная квартира

    Статус
    Квартира заселена
    Балкон
    Лоджия
    Санузел
    Раздельный
    Общая пл
    45.2 м2
    Стоимость платы за наём, без КУ
    8 768.80 руб.
    Ср. стоимость КУ в межотопительный период
    1 989.47 руб.
    Ср. стоимость КУ в отопительный периоду
    3 478.42 руб.

    Кв. 80 - Однокомнатная квартира

    Статус
    Квартира заселена
    Балкон
    Балкон
    Санузел
    Раздельный
    Общая пл
    43.5 м2
    Стоимость платы за наём, без КУ
    8 439.00 руб.
    Ср. стоимость КУ в межотопительный период
    1 989.47 руб.
    Ср. стоимость КУ в отопительный периоду
    3 478.42 руб.

    Кв. 81 - Двухкомнатная квартира

    Статус
    Квартира заселена
    Балкон
    Лоджия
    Санузел
    Раздельный
    Общая пл
    60.2 м2
    Стоимость платы за наём, без КУ
    11 678.80 руб.
    Ср. стоимость КУ в межотопительный период
    2 971.45 руб.
    Ср. стоимость КУ в отопительный периоду
    5 091.01 руб.

    Кв. 82 - Трехкомнатная квартира

    Статус
    Квартира заселена
    Балкон
    2 лоджии
    Санузел
    Раздельный
    Общая пл
    83 м2
    Стоимость платы за наём, без КУ
    16 102.00 руб.
    Ср. стоимость КУ в межотопительный период
    3 903.93 руб.
    Ср. стоимость КУ в отопительный периоду
    6 829.28 руб.

    Кв. 83 - Однокомнатная квартира

    Статус
    Квартира заселена
    Балкон
    Лоджия
    Санузел
    Раздельный
    Общая пл
    39.6 м2
    Стоимость платы за наём, без КУ
    7 682.40 руб.
    Ср. стоимость КУ в межотопительный период
    1 989.47 руб.
    Ср. стоимость КУ в отопительный периоду
    3 478.42 руб.

    Кв. 167 - Однокомнатная квартира

    Статус
    Квартира заселена
    Балкон
    Лоджия
    Санузел
    Раздельный
    Общая пл
    39.3 м2
    Стоимость платы за наём, без КУ
    7 624.20 руб.
    Ср. стоимость КУ в межотопительный период
    1 989.47 руб.
    Ср. стоимость КУ в отопительный периоду
    3 478.42 руб.

    Кв. 168 - Трехкомнатная квартира

    Статус
    Квартира заселена
    Балкон
    2 лоджии
    Санузел
    Раздельный
    Общая пл
    83.2 м2
    Стоимость платы за наём, без КУ
    16 140.80 руб.
    Ср. стоимость КУ в межотопительный период
    3 903.93 руб.
    Ср. стоимость КУ в отопительный периоду
    6 829.28 руб.

    Кв. 169 - Двухкомнатная квартира

    Статус
    Квартира заселена
    Балкон
    Лоджия
    Санузел
    Раздельный
    Общая пл
    60 м2
    Стоимость платы за наём, без КУ
    11 640.00 руб.
    Ср. стоимость КУ в межотопительный период
    2 971.45 руб.
    Ср. стоимость КУ в отопительный периоду
    5 091.01 руб.

    Кв. 170 - Однокомнатная квартира

    Статус
    Квартира заселена
    Балкон
    Балкон
    Санузел
    Раздельный
    Общая пл
    43.7 м2
    Стоимость платы за наём, без КУ
    8 477.80 руб.
    Ср. стоимость КУ в межотопительный период
    1 989.47 руб.
    Ср. стоимость КУ в отопительный периоду
    3 478.42 руб.

    Кв. 171 - Однокомнатная квартира

    Статус
    Квартира заселена
    Балкон
    Лоджия
    Санузел
    Раздельный
    Общая пл
    45.1 м2
    Стоимость платы за наём, без КУ
    8 749.40 руб.
    Ср. стоимость КУ в межотопительный период
    1 989.47 руб.
    Ср. стоимость КУ в отопительный периоду
    3 478.42 руб.

    Кв. 172 - Однокомнатная квартира

    Статус
    Квартира заселена
    Балкон
    Лоджия
    Санузел
    Раздельный
    Общая пл
    41.7 м2
    Стоимость платы за наём, без КУ
    8 089.80 руб.
    Ср. стоимость КУ в межотопительный период
    1 989.47 руб.
    Ср. стоимость КУ в отопительный периоду
    3 478.42 руб.

    Уважаемые заявители!

    С 6 апреля 2020 года приостановлен прием заявителей по всем направлениям деятельности учреждения.

    Также приостановлена работа сервиса предварительной записи на прием «Запись онлайн». Оформленная ранее запись на прием автоматически отменяется.
    Изменения в работе учреждения связаны с введением всеобщего режима самоизоляции и будут действовать до особого распоряжения.

    Об изменениях в организации работы СПб ГБУ «Горжилобмен» и возобновлении работы сервиса будет сообщено дополнительно.

    Всего:
    0 семинара
    Сумма: 0 руб.

    СПБ ГБУ Горжилобмен



    Выделите опечатку и нажмите Ctrl + Enter, чтобы отправить сообщение об ошибке.